

Producent: PERFEXIM Sp. z o.o.
Adres: ul. Samotna 2, 61-441 Poznań, Polska
E-mail: serwis@perfexim.com.pl | Telefon: +48 61 222 6400
Certyfikaty: Produkty marki PERFEXIM posiadają oznakowanie CE, co potwierdza ich zgodność z europejskimi normami bezpieczeństwa, zdrowia i ochrony środowiska.
Polityka bezpieczeństwa
Polityka dostaw
Polityka zwrotów
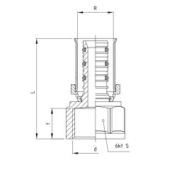
BUDOWA: Wysokogatunkowy mosiądz korpusu, tuleja ze stali nierdzewnej to cechy podwyższonej odporności na korozję. Użycie wysokogatunkowych materiałów do produkcji złączek przyczynia się do możliwości współpracy z materiałami budowlanymi. ZALETY: Prostota wykonania! Wystarczy cięcie prostopadle do osi rury i bez dodatkowych operacji należy wsunąć rurę, aż do momentu wyczucia oporu. Pojawienie się rury w otworach rewizyjnych oznacza prawidłowe jej ułożenie. Tak przygotowane złącze wystarczy tylko zacisnąć i połączenie gotowe! Prosty montaż, bez użycia kalibratora lub gradownika oszczędza do 30% czasu wykonania montażu. Od strony łączenia z instalacją złączki PERFEKT SYSTEM+ posiadają gwinty stożkowe moletowane ułatwiające uzyskanie szczelności na gwincie i przyśpieszające montaż. WYGODNY MONTAŻ W KRÓTKIM CZASIE: 1. Cięcie rury Nie wymaga kalibracji, fazowania ani użycia siły, aby prawidłowo zamontować złączkę. 2. Nie wymaga kalibracji anii fazowania Po odmierzeniu odpowiedniego odcinka rury, wykonujemy cięcie w wyznaczonym miejscu. Należy pamiętać o prostopadłej linii cięcia do osi tury. Używać nożyc przeznaczonych do tego typu rur. 3. Montaż złączki Na końcówkę złączki z tuleją zaciskową nasuwamy rurę, aż do momentu wyczucia oporu. Aby sprawdzić czy rura jest wsunięta na odpowiednią długość należy skontrolować otwory umieszczone na pierścieniu trzymającym tuleję zaciskową. Jeśli rura w pełni zasłanła wszystkie otwory to mamy pewność, że jest wsunięta na odpowiednią głębokość. 4. Zacisk złączki W rozwarte szczęki wkładamy złącze przeznaczone do połączenia odpowłednio bazując w zależności od wybranych szczęk U/TH zgodnie z rysunkiem. Następnie wykonujemy zacisk poprzez zamknięcie-„zwarcie" szczęk aż do pełnego zamknięcia narzędzia. 5. Kompatybilność szczęk z „U" i „TH" Ułożenie szczęk na złączce
Opis
Specyficzne kody